Piena proprietà di abitazione al piano primo e secondo

Descrizione

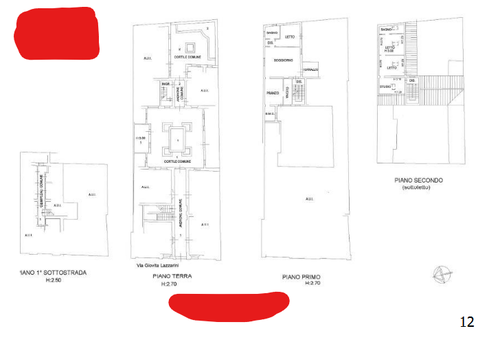
Piena proprietà di abitazione al piano primo e secondo con annessa cantina ai piani primo sottostrada facenti parte di un fabbricato condominiale; classe energetica F. Libero

Questo immobile è in asta, può essere tuo con soli €150,00 per l’inoltro della domanda telematica di partecipazione all’asta, provvediamo a tutto noi.

Inoltre, hai altre esigenze?
Cerchi casa all’asta ma non sai come muoverti né dove informati?

Noi
1) ti aiutiamo nella ricerca, proponendoti immobili in base alle tue esigenze.
2) ti accompagniamo lungo tutto il percorso burocratico che conduce all’asta.

tutto questo con serietà, competenza e chiarezza, senza perdita di tempo da entrambe le parti.

ricorda che, se ti aggiudichi l’immobile e per te è prima casa sono previste agevolazioni e puoi contrarre un mutuo, se sussistono le condizioni, come se trattasse di acquisto sul libero mercato.

Sei “dall’altra parte della barricata” ed hai un immobile pignorato?
POSSIAMO AIUTARTI!

Chiamaci o manda un messaggio Whatsapp al numero 0544 254938 dalle 9:00 alle 13:00 o invia un email all’indirizzo info@flxmanagers.it e verrai ricontattato.

Foto dell'immobile

Dettagli

Allegati

Mappa

Chiedi informazioni

  • Tipo di immobile:

  • Località:

Immobili correlati